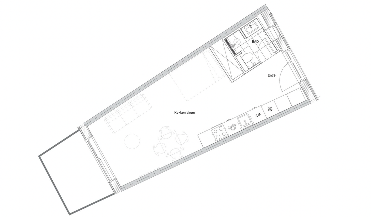
Risskov, Møllehatten 9, 4. 1





Stor solrig altan
Vil du bo tæt på byen, men med naturen som nabo? så er Brynet i Risskov et godt bud på den perfekte location.
Beliggenhed: Møllehatten, Risskov – kun 4 km fra Aarhus C!
Her får du det bedste fra to verdener: kort afstand til studie, indkøb, transport og byliv – og samtidig tæt på skov, strand og smuk natur.
Lejligheden byder på:
- Lækkert, moderne køkken med Siemens-hvidevarer (ovn, induktion, opvasker, køl/frys)
- To rummelige værelser – oplagt som stue og soveværelse eller to separate værelser
- Direkte adgang til egen altan fra begge rum
- Pænt badeværelse med kombi vaskemaskine/tørretumbler
- Depotrum i kælderen
- Mulighed for privat p-plads i aflåst parkeringskælder (mod betaling)
- Husdyr – Mindre hunde/katte er tilladt efter aftale
- Fælles tagterrasse i ejendommen
- Mulighed for leje af p-plads i p-kælder.
Norlys leverer internet og tv i ejendommen, og lejer laver selv aftale herom.
Ingen forudbetalt husleje – kun 3 måneders depositum! Overtagelsen er fleksibel.
OBS: Billederne er fra en tilsvarende bolig i samme bygning, skabsplacering kan være anderledes end på plantegning
Vi udlejer ikke til personer registreret i RKI.
Er du interesseret i lejemålet?

Risskov, Møllehatten 1, 2. 4





Lejlighed med stor altan
Billig indflytningspris i populært område – fleksibel overtagelse
Vil du bo tæt på byen, men med naturen som nabo? så er Brynet i Risskov et godt bud på den perfekte location.
Beliggenhed: Møllehatten, Risskov – kun 4 km fra Aarhus C!
Her får du det bedste fra to verdener: kort afstand til studie, indkøb, transport og byliv – og samtidig tæt på skov, strand og smuk natur.
Lejligheden byder på:
Lækkert, moderne køkken med Siemens-hvidevarer (ovn, induktion, opvasker, køl/frys)
To rummelige værelser – oplagt som stue og soveværelse eller to separate værelser
Direkte adgang til egen terrasse fra begge rum
Pænt badeværelse med kombi vaskemaskine/tørretumbler
Depotrum i kælderen
Mulighed for privat p-plads i aflåst parkeringskælder (mod betaling)
Husdyr – Mindre hunde/katte er tilladt efter aftale
- Fælles tagterrasse i ejendommen
- Norlys leverer internet og tv i ejendommen, men lejer laver selv aftale herom.
Ingen forudbetalt husleje – kun 3 måneders depositum!
OBS: Billederne er fra en tilsvarende bolig i samme bygning, skabsplacering kan være anderledes end på plantegning
Vi udlejer ikke til personer registreret i RKI.
Kontakt os endelig for en fremvisning.
Er du interesseret i lejemålet?

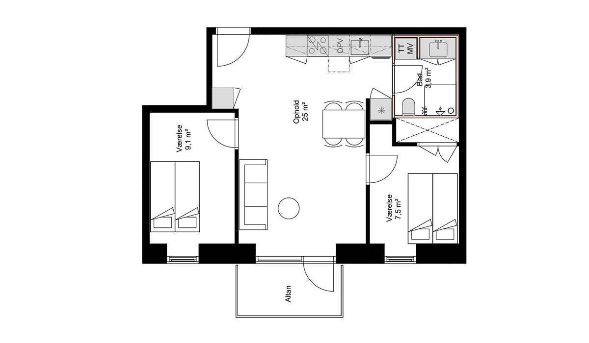
Risskov, Møllehatten 4, 4. 1













Delevenlig 4-værelses
Attraktiv indflytningspris!
Kun 3 måneders depositum – ingen forudbetalt leje
Vi udlejer nu en skøn og delevenlig 4-værelses lejlighed i det attraktive Risskov – en af Aarhus’ mest eftertragtede forstæder, tæt på både strand, skov og byliv.
Lejligheden er ideel som delebolig for tre studerende, til parret med behov for hjemmekontor eller til den lille familie, der ønsker god plads og moderne komfort.
Om boligen:
Lyst, moderne køkken med Siemens-hvidevarer: induktionskogeplade, køle-/fryseskab, opvaskemaskine og praktisk køkkenø
Tre rummelige værelser i næsten samme størrelse
Indbydende opholdsrum med direkte udgang til skøn altan
Lækkert badeværelse med hvidt inventar samt kombivaskemaskine.
Gulvvarme i alle rum med individuelle termostater
Privat depotrum i kælderen
Ekstra fordele:
Mulighed for privat p-plads i aflåst parkeringskælder – mod merbetaling
Husdyr tilladt efter aftale (hund/kat op til 10 kg)
Internet og TV via Norlys – ikke inkluderet i lejen
Bemærk: Billederne er fra en tilsvarende prøvelejlighed i ejendommen og viser samme materialevalg og indretning.
Vi udlejer ikke til personer registreret i RKI.
Vi glæder os til at fremvise denne attraktive lejlighed!
Kontakt os i dag for en fremvisning
Er du interesseret i lejemålet?

Kbh. S, Strandlodsvej 19B, 2. tv.







God beliggenhed i Strandholmen
Lækker lys 3-værelseslejlighed søger nye beboere
Skøn og moderne lejlighed med to altaner og attraktiv beliggenhed.
Om lejligheden
Lejligheden fremstår moderne, lys og indbydende med store vinduer, der sikrer et fantastisk lysindfald.
Lejlighedens hjerte er opholdsrummet med åbent køkken og spiseplads.
Derudover byder boligen på gode værelser med skabe, hvoraf det ene har et stort depotrum.
Inventar og materialer
- Alle hårde hvidevarer inkluderet
- Flotte, lyse trægulve
Husdyr
Det er muligt at ansøge om husdyrtilladelse til ét husdyr. Racen skal godkendes.
Beliggenhed
Ejendommen ligger midt i Strandholmen, tæt på boldbanen, træningsområdet og i kort afstand til vandet.
Her er du tæt på både metro, byliv og strand.
Parkering
Der er mulighed for at leje p-plads i et underjordisk parkeringsanlæg, så længe der er ledige pladser. Spørg venligst.
Vigtige oplysninger
- Fotos er fra en tidligere prøvebolig
- Lejer må ikke figurere i RKI
- Udlejer forbeholder sig ret til at bede om dokumentation for tilknytning til arbejdsmarkedet
Er du interesseret i lejemålet?

Kbh. S., Strandlodsvej 19H, 1. tv.




To altaner - tæt på strandparken
Lys og moderne 4-værelses lejlighed med to altaner
Lejligheden fremstår moderne, lys og indbydende med store vinduer, der giver et fantastisk lysindfald.
Lejlighedens hjerte er det rummelige opholdsrum med åbent køkken og spiseplads, som skaber en naturlig ramme for både hverdag og samvær.
Indretning
- Gode værelser med skabe
- Det ene værelse har stort depotrum
- Åbent køkken i forbindelse med opholdsrummet
Materialer og faciliteter
- Alle hårde hvidevarer inkluderet
- Flotte, lyse trægulve
- To altaner
Husdyr
Det er muligt at ansøge om husdyrtilladelse til ét husdyr. Hunderacen skal godkendes.
Beliggenhed
Ejendommen ligger midt i Strandholmen tæt på boldbanen, træningsområdet og ikke langt fra vandet. Her er du tæt på både metro, byliv og strand.
Parkering
Der er mulighed for at leje p-plads i et underjordisk parkeringsanlæg, så længe der er ledige pladser. Spørg venligst.
Bemærk
- Fotos er fra en tidligere prøvebolig
- Lejer må ikke figurere i RKI
- Vi forbeholder os ret til at bede om dokumentation for tilknytning til arbejdsmarkedet
Er du interesseret i lejemålet?

Brøndby, Elektronikvej 4, 3. 1.









4-værelses med altan
Nu udlejes denne 4 vær i Kobberengen med hurtig overtagelse.
Lejlighed indeholder:
- et godt værelse med indbyggede skabe
- stue/køkken i ét rum
- køkken med alle hårde hvide varer
- dejlig altan
- lækkert badeværelse med vaskesøjle
- depotrum i lejligheden, så du har det hele tæt på
NÆROMRÅDET
KobberEngens beliggenhed i Brønbyvester grænsende til Glostrup er af flere årsager en ideel beliggenhed i forhold til transport, daglige indkøb, institutioner, sportsaktiviteter, fitnesscenter samt natur- og kulturtilbud:
- Glostrup Storcenter – afstand ca. 1,5 km
- Hovedvejen i Glostrup med mange butikker, spisesteder, Glostrup biograf og indkøbsmuligheder – afstand ca. 1,5 km
- Brøndby Strandpark, ca. 6 km fra Kirkebjerg, er et 7 kilometer langt natur- og friluftsområde med sandstrand, rent badevand, varieret strandnatur, mulighed for vinterbadning, SUP mv.
- Svømmehal, fodbold og flere idrætsforeninger i nærområdet, fx håndbold, tennis, gymnastik, sejlads, skak mv. De mange tilbud skaber et stærkt fællesskab i lokalområdet.
- Kirkebjerg er omkredset af Brøndbyskoven, Bakkeskoven og Vestskoven med rig mulighed for at nyde friluftslivet og udforske natur, dyr og planter helt tæt på.
- Gode muligheder for at få børnene i daginstitution og skole.
Mindre husdyr kan tillades efter aftale/godkendelse.
P-plads kan lejes i P-hus.
Lejer må ikke stå i RKI.
Fotos er fra lign. lejemål i ejendommen.
OBS! Vi forbeholder os ret til at bede om kopi af 3 mdr’s lønsedler eller ansættelseskontrakt.
Er du interesseret i lejemålet?

Kbh. K, Frederiksborggade 32, 1. tv.









Centralt i Kbh. K
Super skøn treværelses lejlighed centralt i København K.
Til den lille familie eller som delebolig til to personer.
Plantegningen gør, at lejligheden virker meget luftig, her er plads:
- Kæmpe stue/alrum
- Køkkenet ligger i forbindelse med stuen, men alligevel tilbagetrukket og lidt for sig selv
- To gode værelser
- Stort, nyere badeværelse
Lejligheden er i flot istandsat og har direkte udgang til den pæne og brugbare gårdhave.
Praktisk:
-Bindingsperiode er 9 mdr. + 3 mdr’s opsigelse.
-Køkken og bad leverer alt i hårde hvidevarer.
-Kælder- eller loftsrum hører til lejemålet.
-Parkering er på gaden.
-Ny lejer må ikke figurere i RKI, og vi forbeholder os ret til at bede om kopi af seneste tre måneders lønsedler.
Er du interesseret i lejemålet?

Køge, Søndre Molevej 8E, st.













Hyggelig lejl. i boligfællesskabet Broen +40
FØRSTE MÅNED ER GRATIS!
Velkommen til Broen!
Broen er et boligfællesskab for par og singler over 40 år (uden hjemmeboende børn), som ønsker at bo i et levende, fællesskabsorienteret boligområde – i første række til fredet strandeng og en fantastisk strand.
Broen er moderne livsstilsboliger for 40+ personer, der ønsker en lækker, privat lejlighed kombineret med masser af ekstra fælles faciliteter og kvadratmeter. Fællesskabsånden er det bærende element i Broen, hvor alle beboere fra de 29 lejligheder bidrager til en både tryg og aktiv hverdag.
Broens fællesfaciliteter består af et stort fællesrum med køkken og udgang til terrasse mod sydøst og udsigt til den fredede strandeng, hyggekroge, mulighed for hjemmearbejdsplads, krea-værksted, fitnessmaskiner, lån af havkajakker, tagterrasse med drivhus, hvor beboerne dyrker grønt/urter, gæsteværelser og vaskeri.
Denne hyggelige lejlighed ligger i stueetagen med terrassen mod gården og en lille altan med trappe ned, på den modsatte side af ejendommen.
Lejligheden er indrettet så stue og køkken er lidt opdelt, men stadig åbent.
Køkkenet er et flot sort Invita køkken med stål bordplade og alle hårde hvidevarer. Ved køkkenet er der plads til spisebordet. Herfra udgang til en lille altan med trappe ned til grønt område.
Hyggelig stue med udgang til overdækket terrasse, som vender ind mod det fælles grønne gårdrum.
Badeværelset er meget stort med en masse god opbevaring under vasken, stor bruseniche og plads til vask/tør.
Stort soveværelse med skabsrække og et mindre vær til fx kontor. Depotrum findes også i lejligheden.
Overalt er lagt flotte lyse trægulve og lejligheden har selvfølgelig gulvvarme.
P-plads kan lejes i kommunens store p-hus i området fra 700 kr/md.
Ét husdyr kan tillades efter nærmere aftale med udlejer.
Ejendommens placering tilbyder fantastisk natur, men også byliv med kun 10 min gang til Køges sprudlende bymidte med et væld af butikker i alle kategorier, caféer/restauranter, kulturtilbud, den hyggelige, middelalderbydel og de traditionsrige torvedage. Derudover er det tæt på Køge Station, hvor både S-tog og regionaltog kører, og ikke langt fra den nye Køge Nord Station, hvorfra det kun tager 24 minutter med toget til København H. I bil når du hurtigt det udbyggede motorvejsnet.
Er du nysgerrig på om et boligfællesskab er noget for dig, så kontakt os gerne for en snak og eventuel aftale om en fremvisning af Broen.
Byfællesskabet
Som ny lejer i Broen bliver du automatisk medlem af byfællesskabet, der giver ekstra fordele og afspejler et sundt og aktivt bykvarter. Udviklingen af det nye bykvarter er i fuld gang. Flg. faciliteter kan tages i brug slut april og i løbet af sommeren 2025: Hverdagshus til fællesspisning, bykontor, hobbyrum/værksted, et bevægelseshus til motion, dans og yoga, health club/fitness, udlejning af padelbane og kajakker samt børnekontoret, som er børnenes kreative mødested. Senere kommer isbod, bageri, restaurant, café- og burgerbar.
Er du interesseret i lejemålet?

Aalborg, Blegkilde Allé 22, st.tv













Renoveret 2-værelses lejlighed
Vil du bo i rolige, grønne omgivelser – og samtidig have byen lige i nærheden? På Blegkilde Allé får du en nyrenoveret 2-værelses lejlighed med store vinduespartier, der giver ekstra lys og plads i hverdagen. Her får du det bedste fra to verdener: fredelige omgivelser og nem adgang til Aalborgs pulserende byliv.
Boligen
Lejligheden fremstår lys og moderne med et skønt lysindfald fra de store vinduespartier.
Køkkenet bliver et helt nyt Invita-køkken i stilrent og tidløst design, udstyret med kvalitets hårde hvidevarer fra Siemens:
- Siemens indbygningsovn med pyrolyse
- Siemens induktionskogeplade
- Siemens køle-/fryseskab
- Siemens opvaskemaskine
Badeværelset er moderniseret og har kombineret vaskemaskine og tørretumbler fra Siemens.
Soveværelset er rummeligt med indbyggede skabe, som giver gode opbevaringsmuligheder.
Beliggenhed
Blegkilde Allé er et attraktivt og eftertragtet område, hvor både unge, familier og seniorer trives.
Her bor du tæt på uddannelsesinstitutioner, skoler og daginstitutioner, mens Aalborg centrum nås på få minutter med cykel eller bus. Indkøb klares nemt til fods, naturen ligger lige i nærheden, og motorvejen er hurtigt tilgængelig.
Fællesfaciliteter
- Gratis fitnessrum
- Fællesarealer med legeplads og opholdsområder
- Store fælleslokaler til arrangementer og fester
- Fuldt møbleret gæsteværelse med adgang til toilet
- Hyggelig lounge med bibliotek, aviser og mulighed for køb af drikkevarer
- Cykelværksted
- Gratis parkering for beboere og gæster
Attraktiv indflytningspris – kun 2 måneders depositum.
Vi glæder os til at vise dig boligen – kontakt os i dag for en fremvisning og oplev selv, hvor nemt det er at føle sig hjemme på Blegkilde Allé.
Der fremvises alle ugens hverdage samt efter aftale i weekender. Derudover afholdes åbent hus om torsdagen kl. 10–14 (med tilmelding).
Er du interesseret i lejemålet?

Køge, Cirkelhusene 11, 2, 11.




Velindrettet med 2 altaner
Er du interesseret i lejemålet?

Vejle, Boulevarden 15G, st. 4










Lejlighed i attraktiv ejendom
Perfekt til den studerende.
Velkommen til Hjørnekarren i Vejle – et nyere boligprojekt med unik arkitektur, stilrene materialer og en central beliggenhed få skridt fra Vejles pulserende byliv. Her får du moderne lejligheder i størrelser fra 1- til 4 værelser, alle med lyse rum, store vinduespartier, alt i hårde hvidevarer og funktionelle planløsninger, der sikrer både komfort og fleksibilitet til din hverdag.
Hjørnekarreen byder på egetræsparket, kvalitetskøkkener samt altaner eller terrasser, der inviterer dagslys og frisk luft indenfor. Som beboer får du adgang til fælles tagterrasse, orangeri og grønne udearealer, og en praktisk dagligvarebutik ligger i ejendommens stueetage – perfekt til et aktivt cityliv. Der er tilmed parkeringsmuligheder ved ejendommen.
Beliggenheden kan næsten ikke være bedre: kort afstand til caféer, restauranter, shopping, transport og kulturelle oplevelser, hvilket gør Hjørnekarreen til et optimalt valg for dig, der ønsker moderne byliv uden at gå på kompromis med kvalitet og komfort.
Lejligheden indeholder:
- Entré m. plads til overtøj
- Badeværelse m. vaske-tørremaskine
- Lyst køkken med alt i hårde hvidevarer
- Stue-alrum, som kan deles lidt op i forhold til at have et soveområde
- Terrasse
Billederne er fra en lignende lejlighed i ejendommen.
Vi glæder os til at fremvise denne skønne lejlighed. Kontakt os i dag for at høre mere og sikre dig en fremvisning.
Er du interesseret i lejemålet?

Vejle, Boulevarden 15H, st. 2










Perfekt til den studerende
Super 1’er med god indretning.
Velkommen til Hjørnekarren i Vejle – et nyere boligprojekt med unik arkitektur, stilrene materialer og en central beliggenhed få skridt fra Vejles pulserende byliv. Her får du moderne lejligheder i størrelser fra 1- til 4 værelser, alle med lyse rum, store vinduespartier, alt i hårde hvidevarer og funktionelle planløsninger, der sikrer både komfort og fleksibilitet til din hverdag.
Hjørnekarreen byder på egetræsparket, kvalitetskøkkener samt altaner eller terrasser, der inviterer dagslys og frisk luft indenfor. Som beboer får du adgang til fælles tagterrasse, orangeri og grønne udearealer, og en praktisk dagligvarebutik ligger i ejendommens stueetage – perfekt til et aktivt cityliv. Der er tilmed parkeringsmuligheder ved ejendommen.
Beliggenheden kan næsten ikke være bedre: kort afstand til caféer, restauranter, shopping, transport og kulturelle oplevelser, hvilket gør Hjørnekarreen til et optimalt valg for dig, der ønsker moderne byliv uden at gå på kompromis med kvalitet og komfort.
Lejligheden indeholder:
- Entré m. plads til overtøj
- Badeværelse m. vaske-tørremaskine
- Lyst køkken med alt i hårde hvidevarer
- Stue-alrum, som kan deles lidt op i forhold til at have et soveområde
- Terrasse
Billederne er fra en lignende lejlighed i ejendommen.
Vi glæder os til at fremvise denne skønne lejlighed. Kontakt os i dag for at høre mere og sikre dig en fremvisning.
Er du interesseret i lejemålet?

Aarhus C, Daugbjergvej 13, 4. 5.

















PERFEKT 1-VÆRELSES PÅ 5. SAL I AARHUS C
Bo mindre – lev mere i Teglgårdens studiolejligheder
Drømmer du om en enklere hverdag med mere frihed? I Teglgårdens studiolejligheder får du et moderne small living-koncept, hvor funktionalitet, fællesskab og bæredygtighed går hånd i hånd. Her bor du midt i Trælasten i et gennemtænkt byggeri, hvor kvalitet og nærvær er en naturlig del af hverdagen.
De velindrettede 1-værelses lejligheder er skabt til at få mest muligt ud af hver eneste kvadratmeter. Smarte multimøbler samler flere funktioner i ét og giver en overraskende rummelig fornemmelse trods det kompakte format. Resultatet er en bolig, hvor du kan bo mindre – men leve større. Med mindre plads at vedligeholde får du mere tid til oplevelser, rejser, naturen og byens liv.
Lejlighedens centrale multimøbel fungerer både som sofa og seng og er omgivet af integrerede skabe, hylder og gennemtænkt opbevaring fra gulv til loft. Ét møbel – mange muligheder – og en hverdag med mere luft.
Køkkenet er designet til det moderne liv med stilrene, grebsfrie elementer, keramisk kogeplade, indbygget ovn og køleskab. Den kompakte indretning sikrer god arbejdsplads og et rent, indbydende udtryk. Badeværelset er enkelt og funktionelt med væghængt toilet, opbevaring under vasken og en bruseniche med glasdør, der giver et lyst og åbent udtryk.
Som beboer får du adgang til en stor, indbydende tagterrasse med udendørs fælleskøkken, grillområde, orangeri, loungezoner og outdoor fitness. Her er rammerne sat for både sommerfester, hyggelige aftener og spontane fællesspisninger.
På hver etage finder du desuden et rummeligt fællesrum med sit eget tema – perfekte rammer for både afslapning og fællesskab med naboerne.
Beliggenheden gør hverdagen nem. Gågaden ligger kun 10 minutters gang væk, og byens caféer, butikker og kulturliv findes lige i nærheden. Uddannelsesinstitutioner nås hurtigt på cykel, til fods eller med gode busforbindelser.
Der er mulighed for at leje flydende parkeringspladser i kælderen:
• Natparkering kl. 16–07: 220 kr./md. inkl. moms
• Natparkering kl. 16–08: 420 kr./md. inkl. moms
Priserne inkluderer weekender og helligdage, og parkeringen administreres af APCOA.
OBS: Billederne er fra en tilsvarende lejlighed. Plantegningen tilhører det konkrete lejemål.
Er du interesseret i lejemålet?

Aarhus C, Åparken 2B, 5. 4.













PERFEKT 1-VÆRELSES PÅ 5. SAL I AARHUS C
Bo mindre – lev mere i Teglgårdens studiolejligheder
Drømmer du om en enklere hverdag med mere frihed? I Teglgårdens studiolejligheder får du et moderne small living-koncept, hvor funktionalitet, fællesskab og bæredygtighed går hånd i hånd. Her bor du midt i Trælasten i et gennemtænkt byggeri, hvor kvalitet og nærvær er en naturlig del af hverdagen.
De velindrettede 1-værelses lejligheder er skabt til at få mest muligt ud af hver eneste kvadratmeter. Smarte multimøbler samler flere funktioner i ét og giver en overraskende rummelig fornemmelse trods det kompakte format. Resultatet er en bolig, hvor du kan bo mindre – men leve større. Med mindre plads at vedligeholde får du mere tid til oplevelser, rejser, naturen og byens liv.
Lejlighedens centrale multimøbel fungerer både som sofa og seng og er omgivet af integrerede skabe, hylder og gennemtænkt opbevaring fra gulv til loft. Ét møbel – mange muligheder – og en hverdag med mere luft.
Køkkenet er designet til det moderne liv med stilrene, grebsfrie elementer, keramisk kogeplade, indbygget ovn og køleskab. Den kompakte indretning sikrer god arbejdsplads og et rent, indbydende udtryk. Badeværelset er enkelt og funktionelt med væghængt toilet, opbevaring under vasken og en bruseniche med glasdør, der giver et lyst og åbent udtryk.
Som beboer får du adgang til en stor, indbydende tagterrasse med udendørs fælleskøkken, grillområde, orangeri, loungezoner og outdoor fitness. Her er rammerne sat for både sommerfester, hyggelige aftener og spontane fællesspisninger.
På hver etage finder du desuden et rummeligt fællesrum med sit eget tema – perfekte rammer for både afslapning og fællesskab med naboerne.
Beliggenheden gør hverdagen nem. Gågaden ligger kun 10 minutters gang væk, og byens caféer, butikker og kulturliv findes lige i nærheden. Uddannelsesinstitutioner nås hurtigt på cykel, til fods eller med gode busforbindelser.
Der er mulighed for at leje flydende parkeringspladser i kælderen:
• Natparkering kl. 16–07: 220 kr./md. inkl. moms
• Natparkering kl. 16–08: 420 kr./md. inkl. moms
Priserne inkluderer weekender og helligdage, og parkeringen administreres af APCOA.
OBS: Billederne er fra en tilsvarende lejlighed. Plantegningen tilhører det konkrete lejemål.
Er du interesseret i lejemålet?

Fredericia, Kongens Stræde 20, st.tv










Flot lejlighed med terrasse
Flot renoveret 2-værelses lejlighed med terrasse
Attraktiv beliggenhed i Prins Jørgens Gård – billig indflytning
Drømmer du om en moderne lejlighed i rolige omgivelser, men stadig centralt i Fredericia? Så er denne flotte renoverede lejlighed med terrasse i den populære ejendom Prins Jørgens Gård et oplagt valg.
Lejligheden fremstår lys og indbydende med lækkert køkken og badeværelse fra Invita samt kvalitets hårde hvidevarer fra Siemens. Her er der tænkt på både funktionalitet og æstetik.
Køkkenet er udstyret med:
Siemens indbygningsovn
Siemens induktionskogeplade
Siemens køle-/fryseskab
Siemens opvaskemaskine
Lejligheden indeholder:
Entré
Moderniseret badeværelse med nye Invita-elementer, armaturer samt kombineret vaskemaskine/tørretumbler
Soveværelse med god plads
Lys stue med direkte udgang til terrasse
Ejendommen byder på skønne fællesfaciliteter, som skaber rammerne for både ro og fællesskab:
Lukket og aflåst gårdmiljø kun for ejendommens beboere
Grønne fællesarealer og nyrenoveret legeplads med trampolin
Petanquebane til hyggelige stunder med naboer og venner
Fælleslokaler til arrangementer
Gratis fælles parkeringspladser
Der er desuden en aktiv beboerrepræsentation, som bidrager til et trygt naboskab.
Billig indflytning:
Kr. 0,- i forudbetalt leje og kun 2 måneders leje i depositum.
Bemærk: Billederne er fra en anden renoveret lejlighed i ejendommen.
Kontakt os allerede i dag for en fremvisning – måske er dette din næste drømmebolig i Fredericia.
Er du interesseret i lejemålet?

Kolding, Sdr. Havnegade 16, 2.mf












Dejlig lejlighed ved Kolding Å
Superfin toværelses lejlighed i en attraktiv ejendom med bedste beliggenhed.
Boligen
Velkommen indenfor i denne lejlighed, som kan passe både til par og enlige, der ønsker at bo i gedigen ejendom med bedste beliggenhed.
Lejligheden indeholder entre, lyst køkken med hårde hvidevarer. En stor, rummelig stue og et fint soveværelse. En dejlig altan.
Boligen er ved at blive renoveret, hvorfor billederne er fra en anden lejlighed i ejendommen.
Ejendommen har nogle rigtig gode fælles faciliter, herunder fælles parkeringspladser til ejendommenLejligheden har en attraktiv beliggenhed med ca. 10 minutters gang (800 m) til Koldings hyggelige bymidte med indkøb, caféer og restauranter. Inden for samme afstand finder du også Koldinghus og Slotssøen, mens Geografisk Have ligger ca. 2 km væk – perfekt til grønne gåture.
Billig indflytningspris.
Kontakt
Vi glæder os til at vise dig boligen – kontakt os i dag for en fremvisning og kom et skridt tættere på din næste bolig.
Er du interesseret i lejemålet?

Kolding, Næsbyvej 33, 2. 208











Skøn 2'er i attraktiv ejendom
RENOVERET MED FLOT KØKKEN.
Attraktiv indflytningspris på denne lejlighed.
Ejendommen ligger i naturskønne omgivelser i gåafstand til fjorden og med kun 300 meter til indkøb.
Lejligheden er godt indrettet og indeholder:
- Entré med skabe.
- Lys opholdsstue med udgang til dejlig altan
- Soveværelse med god skabsplads
- Flot køkken fra Invita i elegant lyst tidløst design og med lære hårde hvidevarer: Siemens indbygningsovn med pyrolyse, Siemens induktionskogeplade, Siemens køle/fryseskab, Siemens opvaskemaskine.
- Badeværelse, der ligeledes er flot moderniseret med elementer fra Invita samt med nyere armaturer og med kombineret vaskemaskine-/tørretumbler.
Der er lyse parketgulve i lejligheden.
Gode fællesfaciliteter ved ejendommen med gratis p-pladser, mulighed for at bruge ejendommens fælleslokale – ligesom, der er god plads til børnene på den store flotte legeplads, der har trampolin.
A/c forbrug er anslået da det betales direkte til værkerne.
Der kan gives tilladelse til en kat eller en mindre hund.
Billeder og plantegning er fra et lignende lejemål i ejendommen.
Kontakt os endelig for en fremvisning af denne lejlighed.
Er du interesseret i lejemålet?

Esbjerg, Hospitalsvej 2D, 1.9










Lys og indflytningsklar 3-værelses lejlighed med stor solrig altan
Vil du bo i en nyrenoveret lejlighed med en attraktiv beliggenhed tæt på både natur og Esbjerg centrum? Så er denne 3-værelses lejlighed på Hospitalsvej et oplagt valg. Boligen fremstår lys, indbydende og indflytningsklar med en god planløsning og stilrene materialer – perfekt til dig, der ønsker at flytte direkte ind og skabe et nyt hjem.
Boligen
Opholdsrummet er stort og lyst med god plads til både spiseafdeling og en hyggelig sofaafdeling. Herfra er der direkte udgang til en stor overdækket altan, som fungerer som en naturlig forlængelse af boligen og giver ekstra plads i de varme måneder.
Soveværelserne er rummelige og indrettet med indbyggede skabe, som sikrer gode opbevaringsmuligheder.
Derudover byder lejligheden på en praktisk entré med god skabsplads.
Køkken og bad
Køkkenet fremstår flot og moderne med hvidt inventar i et tidløst design fra Invita samt alle nødvendige hårde hvidevarer fra Siemens.
Badeværelset er lyst og renoveret med moderne inventar samt både vaskemaskine og tørretumbler fra Miele, som gør hverdagen nem og bekvem.
Beliggenhed
Lejligheden er beliggende i en velholdt ejendom på Hospitalsvej med kort afstand til skov, grønne områder og gode muligheder for gå- og løbeture. Samtidig er der nem adgang til indkøb og offentlig transport samt mindre end 5 kilometer til Esbjerg centrum og byens øvrige faciliteter.
Ekstra fordele
- Husdyr er tilladt
- Attraktiv indflytningspris – 3 måneders leje i depositum
- Gratis parkeringspladser til både bil og cykel
- Stor, solrig altan
- Indflytningsklar bolig
Kontakt
Vi glæder os til at vise dig boligen. Kontakt os i dag for en fremvisning og kom et skridt tættere på din næste bolig.
“
Er du interesseret i lejemålet?

Aalborg, Blegkilde Allé 32, 3.tv












Nyrenoveret 2-værelses lejlighed med udestue
Vil du bo i rolige, grønne omgivelser – og samtidig have byen lige i nærheden? På Blegkilde Allé får du en nyrenoveret 2-værelses lejlighed med store vinduespartier og en skøn udestue, der giver ekstra lys og plads i hverdagen. Her får du det bedste fra to verdener: fredelige omgivelser og nem adgang til Aalborgs pulserende byliv.
Boligen
Lejligheden fremstår lys og moderne med et skønt lysindfald fra de store vinduespartier.
Køkkenet bliver et helt nyt Invita-køkken i stilrent og tidløst design, udstyret med kvalitets hårde hvidevarer fra Siemens:
- Siemens indbygningsovn med pyrolyse
- Siemens induktionskogeplade
- Siemens køle-/fryseskab
- Siemens opvaskemaskine
Badeværelset er moderniseret og har kombineret vaskemaskine og tørretumbler fra Siemens.
Soveværelset er rummeligt med indbyggede skabe, som giver gode opbevaringsmuligheder.
Beliggenhed
Blegkilde Allé er et attraktivt og eftertragtet område, hvor både unge, familier og seniorer trives.
Her bor du tæt på uddannelsesinstitutioner, skoler og daginstitutioner, mens Aalborg centrum nås på få minutter med cykel eller bus. Indkøb klares nemt til fods, naturen ligger lige i nærheden, og motorvejen er hurtigt tilgængelig.
Fællesfaciliteter
- Gratis fitnessrum
- Fællesarealer med legeplads og opholdsområder
- Store fælleslokaler til arrangementer og fester
- Fuldt møbleret gæsteværelse med adgang til toilet
- Hyggelig lounge med bibliotek, aviser og mulighed for køb af drikkevarer
- Cykelværksted
- Gratis parkering for beboere og gæster
Attraktiv indflytningspris – kun 2 måneders depositum.
Afslutning
Lejligheden er under renovering, og billeder samt plantegning er fra et tilsvarende lejemål i ejendommen.
Vi glæder os til at vise dig boligen – kontakt os i dag for en fremvisning og oplev selv, hvor nemt det er at føle sig hjemme på Blegkilde Allé.
Der fremvises alle ugens hverdage samt efter aftale i weekender. Derudover afholdes åbent hus om torsdagen kl. 10–14 (med tilmelding).
Er du interesseret i lejemålet?

Kolding, Buen 12, 3. tv.










Eksklusiv 3-værelses lejlighed i Skippergården med altan og udsigt til Kolding Å
Her får du en lejlighed, hvor lys, materialer og udsigten over Kolding Å skaber en bolig ud over det sædvanlige.
Boligen
De høje lofter og det markante lysindfald fra de elegante ovenlysvinduer giver rummene en åben og behagelig fornemmelse. Ovenlysvinduerne er udstyret med elektriske gardiner, som nemt kan tilpasses efter behov.
Boligens hjerte er det stilrene køkken/alrum med kvalitetsløsninger, herunder Gaggenau‑ovn og Quooker. Herfra er der direkte udgang gennem store foldedøre, som kan åbnes helt op til altanen og skabe en naturlig overgang mellem inde og ude.
Altanen er noget for sig selv, hvor du kan nyde udsigten over Kolding Å i rolige omgivelser. Den er udstyret med en mekanisk markise til de solrige dage samt en integreret plantevæg med selvvanding, der tilfører både liv og atmosfære.
Badeværelset er funktionelt og velindrettet med dobbelt håndvask, opvarmet spejl, håndklædetørrer samt vaskemaskine og tørretumbler.
Lejligheden rummer desuden et lyst soveværelse med indbygget skabsvæg samt et ekstra værelse med fleksible anvendelsesmuligheder. De gennemgående plankegulve binder boligen flot sammen og understøtter den rolige, moderne stil.
Ejendommen og faciliteter
- Fælles parkeringspladser til ejendommen
- Ingen forudbetalt leje
- Stor, solrig altan
Beliggenhed
Lejligheden på Buen 12, 3. tv. har en attraktiv beliggenhed med ca. 10 minutters gang (800 m) til Koldings hyggelige bymidte med indkøb, caféer og restauranter. Inden for samme afstand finder du også Koldinghus og Slotssøen, mens Geografisk Have ligger ca. 2 km væk – perfekt til grønne gåture.
Kontakt
Vi glæder os til at vise dig boligen – kontakt os i dag for en fremvisning og kom et skridt tættere på din næste bolig.
Er du interesseret i lejemålet?

Risskov, Møllehatten 9, st. 2






Lækker lejlighed med stor altan
Høj stuelejlighed med fleksibel overtagelse!
Vil du bo tæt på byen, men med naturen som nabo? så er Brynet i Risskov et godt bud på den perfekte location.
Beliggenhed: Møllehatten, Risskov – kun 4 km fra Aarhus C!
Her får du det bedste fra to verdener: kort afstand til studie, indkøb, transport og byliv – og samtidig tæt på skov, strand og smuk natur.
Lejligheden byder på:
Lækkert, moderne køkken med Siemens-hvidevarer (ovn, induktion, opvasker, køl/frys)
To rummelige værelser – oplagt som stue og soveværelse eller to separate værelser
Direkte adgang til egen terrasse fra begge rum
Pænt badeværelse med kombi vaskemaskine/tørretumbler
Depotrum i kælderen
Mulighed for privat p-plads i aflåst parkeringskælder (mod betaling)
Husdyr – Mindre hunde/katte er tilladt efter aftale
- Fælles tagterrasse i ejendommen
- Norlys leverer internet og tv i ejendommen, men lejer laver selv aftale herom.
Ingen forudbetalt husleje – kun 3 måneders depositum!
OBS: Billederne er fra en tilsvarende bolig i samme bygning, skabsplacering kan være anderledes end på plantegning
Vi udlejer ikke til personer registreret i RKI.
Er du interesseret i lejemålet?

Risskov, Møllehatten 3, 1. 2






Lejlighed med stor altan
Billig indflytningspris i populært område – fleksibel overtagelse
Vil du bo tæt på byen, men med naturen som nabo? så er Brynet i Risskov et godt bud på den perfekte location.
Beliggenhed: Møllehatten, Risskov – kun 4 km fra Aarhus C!
Her får du det bedste fra to verdener: kort afstand til studie, indkøb, transport og byliv – og samtidig tæt på skov, strand og smuk natur.
Lejligheden byder på:
Lækkert, moderne køkken med Siemens-hvidevarer (ovn, induktion, opvasker, køl/frys)
To rummelige værelser – oplagt som stue og soveværelse eller to separate værelser
Direkte adgang til egen terrasse fra begge rum
Pænt badeværelse med kombi vaskemaskine/tørretumbler
Depotrum i kælderen
Mulighed for privat p-plads i aflåst parkeringskælder (mod betaling)
Husdyr – Mindre hunde/katte er tilladt efter aftale
- Fælles tagterrasse i ejendommen
- Norlys leverer internet og tv i ejendommen, men lejer laver selv aftale herom.
Ingen forudbetalt husleje – kun 3 måneders depositum!
OBS: Billederne er fra en tilsvarende bolig i samme bygning, skabsplacering kan være anderledes end på plantegning
Vi udlejer ikke til personer registreret i RKI.
Er du interesseret i lejemålet?

Risskov, Møllehatten 4, 4. 2









God studenterhybel i cykelafstand til UNI
Udsigt i top og første måneds huslejefrit!
Skøn 1-værelses lejlighed – perfekt til den der vil bo tæt på byen, men med naturen som nabo.
Beliggenhed: Møllehatten, Risskov – kun 4 km fra Aarhus C!
Her får du det bedste fra to verdener: kort afstand til studie, indkøb, transport og byliv – og samtidig tæt på skov, strand og smuk natur.
Lejligheden byder på:
Flot køkken med Siemens-hvidevarer (ovn, induktion, opvasker, køl/frys)
Direkte adgang til egen sydvendt altan
Pænt badeværelse med kombi vaskemaskine/tørretumbler
Depotrum i kælderen
- Godt opholdsrum
Mulighed for privat p-plads i aflåst parkeringskælder (mod betaling)
Husdyr – Mindre hund/kat er tilladt efter aftale
Norlys leverer internet og tv i ejendommen, men lejer laver selv aftale herom.
Ingen forudbetalt husleje – kun 3 måneders depositum! Vi er fleksible med overtagelsesdato.
Billeder er fra et lignende lejemål i ejendommen.
OBS: Billederne er fra en tilsvarende bolig i samme bygning, skabsplacering kan være anderledes end på plantegning
Vi udlejer ikke til personer registreret i RKI.
Er du interesseret i lejemålet?

Risskov, Møllehatten 20, 2. 2










Klar til studiestart?
Få første måneds husleje gratis!
Perfekt til sig som er single eller studerende – hyggelig lille 1’er med lækker altan.
Flyt billigt ind i Skønne Risskov – kun 3 måneders depositum og med fleksibel indflytning
Risskov, den smukkeste forstad i Aarhus kan du leje denne fantastisk godt beliggende lejlighed på Møllehatten.
På Møllehatten får du en super beliggenhed med alt i indkøb, spisesteder, Riisskoven og dens flotte natur, vandet og ikke mindst meget nær Aarhus C.
Velkommen indenfor i denne lejlighed:
- Flot køkken med alt i hårde hvidevarer
- Køkkenet er i åben forbindelse med opholdsrummet, hvorfra der er udgang til dejlig altan.
- Lækkert badeværelse med kombineret vaskemaskine-/tørretumbler.
- Depotrum i kælder.
- Mulighed for leje af privat p-plads
Ydermere tillades ét husdyr på max 10 kg.
Internet og tv-udbyder i ejendommen er Nordlys.
Kontakt mig allerede i dag pr. mail for fremvisning af denne lejlighed eller en anden lejlighed, der passer til netop dine behov.
Der udlejes ikke til personer registreret i RKI.
Billeder er fra et lignende lejemål i ejendommen.
Er du interesseret i lejemålet?

Risskov, Møllehatten 11, 1. 6








Ideel lejlighed til parret
Super dejlig lejlighed – til det unge par
Vil du bo tæt på byen, men med naturen som nabo? så er Brynet i Risskov et godt bud på den perfekte location.
Beliggenhed: Møllehatten, Risskov – kun 4 km fra Aarhus C!
Her får du det bedste fra to verdener: kort afstand til studie, indkøb, transport og byliv – og samtidig tæt på skov, strand og smuk natur.
Lejligheden byder på:
Lækkert, moderne køkken med Siemens-hvidevarer (ovn, induktion, opvasker, køl/frys)
Stue og soveværelse med skabe.
Direkte adgang til egen altan fra begge rum
Pænt badeværelse med kombi vaskemaskine/tørretumbler
Depotrum i kælderen
Mulighed for privat p-plads i aflåst parkeringskælder (mod betaling)
Husdyr – Mindre hunde/katte er tilladt efter aftale
- Fælles tagterrasse i ejendommen
Norlys leverer internet og tv i ejendommen lejer laver selv aftale herom.
Ingen forudbetalt husleje – kun 3 måneders depositum!
OBS: Billederne er fra en tilsvarende bolig i samme bygning, skabsplacering kan være anderledes end på plantegning
Vi udlejer ikke til personer registreret i RKI.
Er du interesseret i lejemålet?

Horsens, Åparken 25, 1.mf.










Flot renoveret 2-værelses i Åparken - elevator, gratis parkering og fællesfaciliteter
Drømmer du om en indflytningsklar lejlighed i rolige omgivelser – men stadig tæt på midtbyen? Her får du en flot renoveret 2-værelses bolig i Åparken med moderne komfort og en attraktiv beliggenhed.
Ejendommen er kendt for sit gode naboskab og en aktiv beboerforening med fællesarrangementer. Du bor i gåafstand til midtbyen og har Åpark-Centret lige i nærheden.
Boligen
Lejligheden fremstår moderne og velindrettet med en god planløsning.
Køkkenet er et stilrent Invita-køkken i tidløst design, fuldt udstyret med kvalitetshårde hvidevarer fra Siemens:
- Indbygningsovn med pyrolyse
- Induktionskogeplade
- Køle-/fryseskab
- Opvaskemaskine
Badeværelset er moderniseret og indrettet med kombineret vaskemaskine og tørretumbler.
Soveværelset er rummeligt med indbyggede skabe, som giver gode opbevaringsmuligheder.
Faciliteter
- Elevator i ejendommen
- Gratis fællesparkering
- Pulterrum
- Flot orangeri
- Fællesrum til udlejning (fx til fester)
- Husdyr tilladt
Beliggenhed
Her bor du med kort afstand til midtbyen, indkøb og offentlig transport – samtidig i rolige omgivelser med grønne områder lige i nærheden.
Afslutning
Lejligheder som denne bliver hurtigt udlejet – måske er dette dit næste hjem. Kontakt os i dag for en fremvisning.
Er du interesseret i lejemålet?

Kbh. S, Strandlodsvej 21 E, 4.






Lækker lys lejlighed
Lækker lys 4-værelseslejlighed i Viben søger nye beboere
Skøn og moderne lejlighed med stor altan og attraktiv beliggenhed.
Om lejligheden
Lejligheden fremstår moderne, lys og indbydende med store vinduer, der sikrer et godt lysindfald.
Lejlighedens hjerte er det store opholdsrum med åbent køkken og spiseplads.
Derudover byder boligen på gode værelser med skabe, hvoraf det ene har et stort depotrum.
OBS! Der medfølger ikke kælderrum.
Inventar og materialer
- Alle hårde hvidevarer inkluderet
- Flotte, lyse trægulve
Husdyr
Det er muligt at ansøge om husdyrtilladelse til ét husdyr. Racen skal godkendes.
Beliggenhed
Ejendommen ligger midt i Strandholmen, tæt på boldbanen, træningsområdet og i kort afstand til vandet.
Her er du tæt på både metro, byliv og strand.
Parkering
Der er mulighed for at leje p-plads i et underjordisk parkeringsanlæg, så længe der er ledige pladser. Spørg venligst.
Vigtige oplysninger
- Fotos er fra en tidligere prøvebolig
- Lejer må ikke figurere i RKI
- Udlejer forbeholder sig ret til at bede om dokumentation for tilknytning til arbejdsmarkedet
Er du interesseret i lejemålet?

Aarhus C, Dirch Passers Gade 51, st.









Central 1'er i midtbyen
Velkommen til Brokvarteret – Aarhus’ nye bydel.
Et område i Aarhus C med mange forskellige karréer. Denne karré er placeret lige i midten af det hele.
Selve karréen her er lukket og giver dermed mulighed for hyggelige stunder.
Lejlighederne henvender sig perfekt til parret eller lejeren der ønsker en rolig sted for sig selv. Alle lejlighederne fremstår lyse med store vinduespartier.
Der er altan og eller terrasse til alle boligerne således, at solen og udsigten til det hyggeligt område kan nydes.
Velkommen indenfor i denne fine lejlighed:.
- Flot Designa køkken med alt i hårde hvidevarer
- Badeværelse med vaskemaskine og tørretumbler Lejlighedens køkken er i åben forbindelse med stuen, hvorfra der er udgang til den store terrasse
- Der er selvfølgelig også opvaskemaskine i lejligheden.
Alle lejligheder har enten depotrum i lejligheden eller depotrum i kælderen.
I Brokvareret er der et aktivt byliv med hyggelige gader, indkøb lige ved døren, grønne områder, udeliv og caféer.
Selve karréen her er lukket og giver dermed mulighed for hyggelige stunder. Der er mulighed for leje af parkeringsplads.
OBS billederne er fra en prøvebolig, hvorfor der kan være afvigelse. Men materialer mm er gennemgående.
Vi udlejer ikke til personer registreret i RKI.
Kontakt os i dag for en fremvisning af disse skønne boliger.
Er du interesseret i lejemålet?

Risskov, Møllehatten 1, 1. 2







Lejlighed med perfekt beliggenhed
Billig indflytningspris – populært område – velindrettet som delelejlighed
Vil du bo tæt på byen, men med naturen som nabo? så er Brynet i Risskov et godt bud på den perfekte location.
Beliggenhed: Møllehatten, Risskov – kun 4 km fra Aarhus C!
Her får du det bedste fra to verdener: kort afstand til studie, indkøb, transport og byliv – og samtidig tæt på skov, strand og smuk natur.
Lejligheden byder på:
Lækkert, moderne køkken med Siemens-hvidevarer (ovn, induktion, opvasker, køl/frys)
To rummelige værelser – oplagt som stue og soveværelse eller to separate værelser
Direkte adgang til egen terrasse fra begge rum
Pænt badeværelse med kombi vaskemaskine/tørretumbler
Depotrum i kælderen
Mulighed for privat p-plads i aflåst parkeringskælder (mod betaling)
Husdyr – Mindre hunde/katte er tilladt efter aftale
- Fælles tagterrasse i ejendommen
- Norlys leverer internet og tv i ejendommen lejer laver selv aftale herom.
Ingen forudbetalt husleje – kun 3 måneders depositum!
OBS: Billederne er fra en tilsvarende bolig i samme bygning, skabsplacering kan være anderledes end på plantegning
Vi udlejer ikke til personer registreret i RKI.
Er du interesseret i lejemålet?

Risskov, Møllehatten 3, 1. 4






Lejlighed med perfekt beliggenhed
Billig indflytningspris – populært område – velindrettet som delelejlighed
Vil du bo tæt på byen, men med naturen som nabo? så er Brynet i Risskov et godt bud på den perfekte location.
Beliggenhed: Møllehatten, Risskov – kun 4 km fra Aarhus C!
Her får du det bedste fra to verdener: kort afstand til studie, indkøb, transport og byliv – og samtidig tæt på skov, strand og smuk natur.
Lejligheden byder på:
Lækkert, moderne køkken med Siemens-hvidevarer (ovn, induktion, opvasker, køl/frys)
To rummelige værelser – oplagt som stue og soveværelse eller to separate værelser
Direkte adgang til egen terrasse fra begge rum
Pænt badeværelse med kombi vaskemaskine/tørretumbler
Depotrum i kælderen
Mulighed for privat p-plads i aflåst parkeringskælder (mod betaling)
Husdyr – Mindre hunde/katte er tilladt efter aftale
- Fælles tagterrasse i ejendommen
- Norlys leverer internet og tv i ejendommen lejer laver selv aftale herom.
Ingen forudbetalt husleje – kun 3 måneders depositum!
OBS: Billederne er fra en tilsvarende bolig i samme bygning, skabsplacering kan være anderledes end på plantegning
Vi udlejer ikke til personer registreret i RKI.
Er du interesseret i lejemålet?

Kolding, Næsbyvej 77, 2 -205









3-værelses med altan og elevator – tæt på fjorden og indkøb
Vil du bo tæt på fjorden, have indkøb lige i nærheden og samtidig en moderne, indflytningsklar bolig? Så er denne 3-værelses lejlighed på Næsbyvej et oplagt valg. Her får du en velindrettet bolig i rolige omgivelser med elevator i ejendommen.
Boligen
Lejligheden fremstår lys og rummelig med en stor stue og direkte udgang til en overdækket altan. Boligen har en enkel og indbydende stil, som er nem at indrette og gøre personlig.
Køkkenet er et stilrent Invita-køkken i lyst design med god skabs- og bordplads samt kvalitets hårde hvidevarer fra Siemens.
- Siemens indbygningsovn med pyrolyse
- Siemens induktionskogeplade
- Siemens køle-/fryseskab
- Siemens opvaskemaskine
Badeværelset er moderniseret med elementer fra Invita, nyere armaturer samt kombineret vaskemaskine og tørretumbler fra Siemens.
Ejendommen
- Elevator
- Gratis parkering
- Fælleslokale til arrangementer
- Stor legeplads med trampolin
Beliggenhed
Du bor i rolige omgivelser tæt på Kolding Fjord og med indkøb blot 300 meter fra døren. Her får du en god balance mellem naturskønne omgivelser og nem adgang til hverdagens fornødenheder.
Praktisk information
A conto-forbrug er anslået og afregnes direkte med forsyningsselskaberne.
Bemærk: Billederne stammer fra et tilsvarende lejemål i ejendommen, da lejligheden er under renovering og vil fremstå spejlvendt.
Kontakt
Vi glæder os til at vise dig boligen. Kontakt os i dag for en fremvisning og kom et skridt tættere på din næste bolig.
Er du interesseret i lejemålet?

Højbjerg, Emiliedalsvej 189, 1.












Nyrenoveret lejlighed med altan og lækkert Invita-køkken
Vil du bo i en nyrenoveret lejlighed med attraktiv beliggenhed tæt på skov og i cykelafstand til vandet? Så er denne bolig på Emiliedalsvej noget for dig.
Boligen fremstår lys, moderne og indflytningsklar – perfekt til dig, der ønsker kvalitet, rolige og naturskønne omgivelser samt nem adgang til Aarhus centrum.
Boligen
Lejligheden byder på en rummelig entré med god plads til overtøj og opbevaring.
Opholdsstuen er lys og indbydende med et skønt lysindfald. Med direkte udgang til altanen får du en naturlig forlængelse af boligen.
Soveværelset er stort og funktionelt med indbygget skabsplads.
Køkken og bad
Her får du et lækkert Invita-køkken i et stilrent og tidløst design med kvalitetshvidevarer fra Siemens.
- Indbygningsovn med pyrolyse
- Induktionskogeplade
- Køle-/fryseskab
- Opvaskemaskine
- Vaskemaskine
- Tørretumbler
Badeværelset er moderniseret med nyt skabsarrangement, nedfældet vask i bordplade samt nye armaturer.
Ekstra faciliteter
- Eget pulterrum
- Overdækket parkeringsplads
- Legeplads
Beliggenhed
Du bosætter dig i attraktive Højbjerg med kort afstand til både skov, strand og grønne områder.
Aarhus centrum ligger kun ca. 6 kilometer væk, hvilket giver en ideel kombination af rolige omgivelser og nem adgang til byens mange muligheder.
Hvis dette skal være dit næste hjem, så kontakt os i dag for en fremvisning og oplev selv boligen, de rolige omgivelser og den attraktive beliggenhed.
Er du interesseret i lejemålet?

Voltvej 1, st. tv









Rummelig og indbydende lejlighed
Åbent hus i vores flotte prøvebolig
Onsdage kl. 16.30–17.00
Søndage kl. 11.00–12.00
3-værelses lejlighed
Denne flotte 3-værelses lejlighed indeholder:
- To gode værelser med indbyggede skabe
- Lejlighedens hjerte – det dejlige stue-/køkkenalrum
- Flot hvidt køkken med alle hårde hvidevarer
- Skøn terrasse
- Lækkert badeværelse med vaskesøjle
- Depotrum i lejligheden, så du har det hele tæt på
Nærområdet
KobberEngens beliggenhed i Brøndbyvester, grænsende til Glostrup, er ideel i forhold til transport, daglige indkøb, institutioner, sportsaktiviteter, fitnesscenter samt natur- og kulturtilbud:
- Glostrup Storcenter – ca. 1,5 km
- Hovedvejen i Glostrup med mange butikker, spisesteder, Glostrup Biograf og gode indkøbsmuligheder – ca. 1,5 km
- Brøndby Strandpark – ca. 6 km fra Kirkebjerg. Et 7 km langt natur- og friluftsområde med sandstrand, rent badevand, varieret strandnatur samt mulighed for vinterbadning, SUP m.m.
- Svømmehal, fodbold og flere idrætsforeninger i nærområdet, fx håndbold, tennis, gymnastik, sejlads og skak. De mange tilbud skaber et stærkt fællesskab i lokalområdet.
- Kirkebjerg er omgivet af Brøndbyskoven, Bakkeskoven og Vestskoven med rig mulighed for friluftsliv og naturoplevelser.
- Gode muligheder for daginstitution og skole
Praktiske oplysninger
- 1 stk. mindre husdyr kan tillades efter aftale og godkendelse
- P-plads kan lejes i p-hus
- Lejer må ikke stå i RKI
- Fotos er fra lignende lejemål i ejendommen
- Vi forbeholder os ret til at bede om kopi af 3 måneders lønsedler eller ansættelseskontrakt
Er du interesseret i lejemålet?

Kongsvang Allé 2, 4. tv.













Charmerende lejlighed på Kongsvang Allé
Lys og charmerende lejlighed på Kongsvang Allé – perfekt beliggenhed i Aarhus C
Lys, luft og ægte Frederiksbjerg-stemning – denne lejlighed på Kongsvang Allé er noget helt særligt.
Her bor du midt i et af Aarhus’ mest eftertragtede kvarterer, hvor byliv, natur og hverdagens bekvemmeligheder smelter sammen. Med både skov og strand inden for kort afstand og centrum lige rundt om hjørnet, får du en beliggenhed, der er svær at slå.
Lejligheden byder dig velkommen i en indbydende entré med god plads til både sko og overtøj. Herfra åbner hjemmet sig op med en skøn, lys atmosfære, der mærkes i alle rum. Køkkenet er rummeligt og funktionelt med masser af skabsplads – og som en ekstra bonus har du direkte udgang til en af lejlighedens to altaner. Perfekt til morgenkaffen eller en stille stund i solen.
Stuen er lys og charmerende med en hyggelig indretning og en fin trappe, der fører op til en hems – ideel som ekstra soveplads, hjemmekontor eller hyggekrog. Lejligheden rummer desuden et dejligt soveværelse med gode opbevaringsmuligheder, så hverdagen bliver både nem og overskuelig.
Badeværelset fremstår pænt og funktionelt med separat bruseniche, og i kælderen er der fri adgang til vaskefaciliteter. Derudover hører både depotrum og cykelopbevaring med til lejemålet.
Med hele to altaner får du rig mulighed for at nyde solen dagen igennem – uanset om du er til morgenlys eller aftensol.
Ejendommen er samtidig under forbedring med nyt tag og nye vinduer i 2026.
En oplagt bolig til delevenner eller det unge par, der drømmer om en central base med masser af charme.
Kontakt os allerede i dag for en fremvisning – denne lejlighed skal opleves.
Bemærk: Vi udlejer ikke til personer registreret i RKI.
Er du interesseret i lejemålet?

Amperestien 7, 3. 4








Skøn og nydelig bolig med altan
Kom til ÅBENT HUS i vores flotte prøvebolig SØNDAG KL. 11-12, samt ONSDAG kl. 16.30-17.00
Tidligere industrikvarter – nu Brøndbyvesters nye, grønne boligområde kaldet Kirkebjerg. Velkommen til bebyggelsen KobberEngen med 463 lejelejligheder, der ligger smukt placeret i det nye boligområde. Her er fuld af liv og muligheder for maximal livsudfoldelse.
Her får du en stor rummelig 4-værelseslejlighed, der indeholder flg.:
- Tre rummelige værelser med indbyggede skabe
- Stue-/køkkenalrum med masser af plads til hygge og fælles aktiviteter samt udgang til en skøn altan
- Køkkenet har alle hårde hvidevarer
- Lækkert badeværelse i gode materialer og med gulvvarme
- Depotrum i lejligheden, der eventuelt kan bruges som walk-in-closet
I KobberEngen er der gjort meget ud af udeområderne mellem karréerne for at skabe hygge og samhørighed. Her er mange pladser med bænke til at nyde roen og den udendørs tilværelse. Der er legepladser og græsarealer til leg for børnene. Om aftenen er stisystemerne godt oplyste, så alle kan føle sig trygge. KobberEngens beliggenhed i Brønbyvester grænsende til Glostrup er af flere årsager en ideel beliggenhed i forhold til transport, daglige indkøb, institutioner, sportsaktiviteter, fitnesscenter samt natur- og kulturtilbud.
Husdyr kan tillades efter aftale/godkendelse. P-plads kan lejes i P-hus (også pladser til el) Lejer må ikke stå i RKI. Fotos er fra lign. lejemål i ejendommen.
OBS! Vi forbeholder os ret til at bede om kopi af 3 mdr’s lønsedler eller ansættelseskontrakt.
Kontakt os venligst for mere info og aftale om fremvisning.
Er du interesseret i lejemålet?

Aalborg, Blegkilde Allé 16, st. tv.



















Skøn 2-værelses i stueplan med udgang til terrasse
Vi fremviser alle ugens hverdage og efter aftale i weekender samt holder åbent hus om torsdagen fra 10 – 14 (med tilmelding)
Bo grønt, roligt og centralt – Nyrenoveret lejlighed med stort vinduesparti og dejlig altan.
Attraktiv indflytningspris – kun 2 måneders leje i depositum.
På Blegkilde Allé får du det bedste fra to verdener: rolige, grønne omgivelser og samtidig nem adgang til Aalborgs pulserende byliv. Ejendommen er fritstående, hvilket giver et fantastisk lysindfald og et frit udsyn fra alle vinduer – her opleves boligen lys, åben og indbydende hele dagen.
Lejligheden – gennemtænkt, moderne og indflytningsklar
- Nyrenoveret 2 værelses lejlighed med et fantastisk lysindfald
- Flot sprit nyt Invita-køkken i stilrent, tidløst design med kvalitets hårde hvidevarer fra Siemens: indbygningsovn med pyrolyse, induktionskogeplade, køle-/fryseskab og opvaskemaskine
- Moderniseret badeværelse med kombineret vaske- og tørremaskine
- Direkte udgang til en skøn terrasse
En beliggenhed, der gør hverdagen lettere
Blegkilde Allé er et attraktivt og eftertragtet område, hvor både unge, familier og seniorer trives. Her bor du tæt på uddannelsesinstitutioner, skole og daginstitutioner, mens Aalborgs centrum nås på få minutter med cykel eller bybus. Dagligvareindkøb klares nemt til fods, naturen ligger lige i nærheden, og motorvejen er hurtigt tilgængelig.
Fællesfaciliteter i særklasse
Som lejer får du adgang til en lang række attraktive faciliteter, der løfter hverdagen og skaber fællesskab:
- Helt nyt og moderne fitnessrum til fælles benyttelse – gratis for dig, som lejer
- Smukke, grønne fællesarealer med legeplads og borde-bænkesæt
- Store fælleslokaler med fremragende faciliteter – perfekt til familiefester og sociale arrangementer
- Fuldt møbleret gæsteværelse med sengelinned og adgang til toilet
- Hyggelig lounge med bibliotek, friske aviser og tidsskrifter samt mulighed for at købe kolde og varme drikke
- Cykelværksted til mindre reparationer og vedligehold
- Gratis parkering for både beboere og gæster
Da lejligheden endnu ikke er renoveret er billeder og plantegning fra et lignende lejemål i ejendommen.-
Ejendommen rummer flere forskellige boligtyper, og vi står klar til at hjælpe dig med at finde netop den lejlighed, der passer perfekt til dine behov og ønsker.
Kontakt os i dag og oplev, hvor nemt det er at føle sig hjemme på Blegkilde Allé.
.
Er du interesseret i lejemålet?

Køge, Søndre Molevej 8F, 5. 25











Hyggelig lejl. i boligfællesskabet Broen +40
Velkommen til Broen!
Broen er et boligfællesskab for par og singler over 40 år (uden hjemmeboende børn), som ønsker at bo i et levende, fællesskabsorienteret boligområde – i første række til fredet strandeng og en fantastisk strand.
Broen er moderne livsstilsboliger for 40+ personer, der ønsker en lækker, privat lejlighed kombineret med masser af ekstra fælles faciliteter og kvadratmeter. Fællesskabsånden er det bærende element i Broen, hvor alle beboere fra de 29 lejligheder bidrager til en både tryg og aktiv hverdag.
Broens fællesfaciliteter består af et stort fællesrum med køkken og udgang til terrasse mod sydøst og udsigt til den fredede strandeng, hyggekroge, mulighed for hjemmearbejdsplads, krea-værksted, fitnessmaskiner, lån af havkajakker, tagterrasse med drivhus, hvor beboerne dyrker grønt/urter, gæsteværelser og vaskeri.
Denne lejlighed ligger højt oppe på 5. sal ud. Altanen til lejligheden er ikke kun privat, men giver også adgang til trappen.
Lejligheden indeholder:
Entré med skabe fra Invita og adgang til et flot badeværelse med brus, skuffer under håndvasken og plads til egen vask/tør. (gratis fællesvaskeri findes på 3. sal)
Sort stilfuldt køkken fra Invita med en stål-bordplade og alle hårde hvidevarer. Ved køkkenet er der plads til spisebordet eller en lille sofa i et dejligt lys fra de store vinduespartier.
Depotrum i kælderen medfølger og p-plads kan lejes i kommunens store p-hus i området fra 700 kr/md.
Ét mindre husdyr kan tillades efter nærmere aftale med udlejer.
Ejendommens placering tilbyder fantastisk natur, men også byliv med kun 10 min gang til Køges sprudlende bymidte med et væld af butikker i alle kategorier, caféer/restauranter, kulturtilbud, den hyggelige, middelalderbydel og de traditionsrige torvedage. Derudover er det tæt på Køge Station, hvor både S-tog og regionaltog kører, og ikke langt fra den nye Køge Nord Station, hvorfra det kun tager 24 minutter med toget til København H. I bil når du hurtigt det udbyggede motorvejsnet.
Er du nysgerrig på om et boligfællesskab er noget for dig, så kontakt os gerne for en snak og eventuel aftale om en fremvisning af Broen.
OBS! Fotos er fra en lignende lejlighed samt tidl. prøvebolig.
Byfællesskabet
Som ny lejer i Broen bliver du automatisk medlem af byfællesskabet, der giver ekstra fordele og afspejler et sundt og aktivt bykvarter. Udviklingen af det nye bykvarter er i fuld gang. Flg. faciliteter kan tages i brug slut april og i løbet af sommeren 2025: Hverdagshus til fællesspisning, bykontor, hobbyrum/værksted, et bevægelseshus til motion, dans og yoga, health club/fitness, udlejning af padelbane og kajakker samt børnekontoret, som er børnenes kreative mødested. Senere kommer isbod, bageri, restaurant, café- og burgerbar.
Er du interesseret i lejemålet?

Wattvej 4, st. tv







Hyggelig med egen terrasse
Åbent hus i vores prøvebolig
Søndage kl. 11.00–12.00
Onsdage kl. 16.30–17.00
2-værelses stuelejlighed
Denne 2-værelses stuelejlighed indeholder:
- Et godt værelse med indbyggede skabe
- Lejlighedens hjerte – stue-/køkkenalrummet
- Køkken med alle hårde hvidevarer
- Dejlig terrasse med udgang fra stuen
- Lækkert badeværelse med vaskesøjle
- Depotrum i lejligheden, så du har det hele tæt på
Nærområdet
KobberEngens beliggenhed i Brøndbyvester, grænsende til Glostrup, er ideel i forhold til transport, daglige indkøb, institutioner, sportsaktiviteter, fitnesscenter samt natur- og kulturtilbud:
- Glostrup Storcenter – ca. 1,5 km
- Hovedvejen i Glostrup med mange butikker, spisesteder, Glostrup Biograf og gode indkøbsmuligheder – ca. 1,5 km
- Brøndby Strandpark – ca. 6 km fra Kirkebjerg. Et 7 km langt natur- og friluftsområde med sandstrand, rent badevand, varieret strandnatur samt mulighed for vinterbadning, SUP m.m.
- Svømmehal, fodbold og flere idrætsforeninger i nærområdet, fx håndbold, tennis, gymnastik, sejlads og skak. De mange tilbud skaber et stærkt fællesskab i lokalområdet.
- Kirkebjerg er omgivet af Brøndbyskoven, Bakkeskoven og Vestskoven med rig mulighed for friluftsliv og naturoplevelser.
- Gode muligheder for daginstitution og skole
Øvrige oplysninger
- Mindre husdyr kan tillades efter aftale og godkendelse
- P-plads kan lejes i p-hus fra 300–500 kr. pr. måned
- Lejer må ikke stå i RKI
- Fotos er fra lignende lejemål i ejendommen
- Vi forbeholder os ret til at bede om kopi af 3 måneders lønsedler eller ansættelseskontrakt
Er du interesseret i lejemålet?

Brøndby, Elektronikvej 6, 6. 4








På 6. sal med masser af lys
Åbent hus i vores flotte prøvebolig
Onsdage kl. 17.00–17.30
Søndage kl. 11.00–12.00
4-værelses lejlighed
Denne 4-værelses lejlighed indeholder:
- Tre gode værelser med indbyggede skabe – to mindre og ét stort
- Lejlighedens hjerte – det dejlige stue-/køkkenalrum
- Flot køkken med alle hårde hvidevarer
- Skøn altan
- Lækkert badeværelse med vaskesøjle
- Depotrum i lejligheden, så du har det hele tæt på
Nærområdet
KobberEngens beliggenhed i Brøndbyvester, grænsende til Glostrup, er ideel i forhold til transport, daglige indkøb, institutioner, sportsaktiviteter, fitnesscenter samt natur- og kulturtilbud:
- Glostrup Storcenter – ca. 1,5 km
- Hovedvejen i Glostrup med mange butikker, spisesteder, Glostrup Biograf og indkøbsmuligheder – ca. 1,5 km
- Brøndby Strandpark – ca. 6 km fra Kirkebjerg. Et 7 km langt natur- og friluftsområde med sandstrand, rent badevand, varieret strandnatur samt mulighed for vinterbadning, SUP m.m.
- Svømmehal, fodbold og flere idrætsforeninger i nærområdet, fx håndbold, tennis, gymnastik, sejlads og skak. De mange tilbud skaber et stærkt fællesskab i lokalområdet.
- Kirkebjerg er omgivet af Brøndbyskoven, Bakkeskoven og Vestskoven med rig mulighed for friluftsliv og naturoplevelser.
- Gode muligheder for daginstitution og skole
Praktiske oplysninger
- 1 stk. mindre husdyr kan tillades efter aftale og godkendelse
- P-plads kan lejes i p-hus fra 300 kr. pr. måned
- Lejer må ikke stå i RKI
- Fotos er fra lignende lejemål i ejendommen
- Vi forbeholder os ret til at bede om kopi af 3 måneders lønsedler eller ansættelseskontrakt
Er du interesseret i lejemålet?

Aarhus C, Augustenborggade 2K, kl.. 3










Attraktiv 1'er i centrum
Stor og indbydende 1-værelses lejlighed i hjertet af Aarhus C – med skøn terrasse
Drømmer du om at bo centralt i Aarhus med både byliv og grønne omgivelser lige i nærheden? Denne lyse og rummelige 1-værelses lejlighed byder på en attraktiv planløsning og en dejlig terrasse, hvor du kan nyde udelivet.
Lejligheden byder dig velkommen i en praktisk entré med god skabsplads. Herfra træder du ind i et lyst køkken, som ligger i åben forbindelse med lejlighedens hyggelige alrum/stue. Rummet har en god størrelse med plads til både sofaområde og et mindre spisebord – perfekt til både hverdag og gæster.
Fra stuen er der direkte adgang til lejlighedens terrasse, som giver en ekstra dimension til boligen og skaber en skøn mulighed for at nyde frisk luft og afslapning.
Badeværelset er rummeligt og udført i lyse materialer med separat bruseniche.
Derudover får du adgang til fri vask i ejendommens kælder samt et praktisk depotrum til opbevaring.
Lejligheden ligger i det populære Langenæs-område, hvor du har dagligvarebutikker lige om hjørnet og kort afstand til både Aarhus midtby og flere uddannelsesinstitutioner.
Boligen egner sig perfekt til dig, der ønsker at bo alene – eller til et par, som ønsker en central og funktionel bolig
Der er mulighed for at leje en p-plads ved ejendommen.
Lejeperioden er tidsbegrænset til 2 år (24 måneder).
Kontakt os allerede i dag for at aftale en fremvisning af dette attraktive lejemål.
Bemærk: Vi udlejer ikke til personer registreret i RKI.
Er du interesseret i lejemålet?

Aarhus C, Søren Frichs Vej 23 B, 5. Dør 8
















BO TÆT PÅ DET HELE MED AFTENSOL
BO TÆT PÅ DET HELE – OG LEV LIVET I AARHUS 🌇
Drømmer du om en bolig, hvor byliv og natur smelter sammen? Så er denne lejlighed i Trianglen det oplagte valg. Her får du en arkitektonisk smuk karré-bebyggelse placeret ved det gamle godsbaneareal – med Aarhus midtby lige rundt om hjørnet og grønne, rekreative områder lige uden for døren.
Området er ideelt for dig, der ønsker en central base tæt på indkøb, uddannelsessteder og arbejdspladser. Perfekt til både unge, singler, par og børnefamilier.
Lejligheden byder på:
✨ Stor og indbydende entré med god plads
✨ Lyst, moderne køkken med opvaskemaskine
✨ Flot badeværelse med separat bruseniche samt vaskemaskine og tørretumbler
✨ Rummelig stue i åben forbindelse med køkkenet – perfekt til både hverdag og gæster
✨ Skøn altan mod vest med udsigt til aftensolen 🌅
Boligen er oplagt til det unge par, singlen – eller som delelejlighed.
📞 Ring allerede i dag for mere information eller for at booke en fremvisning!
Bemærk:
Vi udlejer ikke til personer registreret i RKI.
Billederne er fra et lignende lejemål i ejendommen.
Er du interesseret i lejemålet?

Aarhus C, Augustenborggade 2K, 1.






BO TÆT PÅ DET HELE
Fin stor 1’er i Aarhus C med god størrelse terrasse
Lejligheden rummer en god entré med masser af skabsplads og lyst køkken i åben forbindelse med lejlighedens alrum/stue.
I stuen/alrummet er der fint plads til lille spisebord og sofa. Fra alrum/stuen er der ydermere adgang til lejlighedens terrasse
God størrelse badeværelse i lyse materialer og separat bruseniche
Der er fri vask i kælderen og tilhørende depotrum.
Lejligheden er placeret i ”Langenæs” området, og har indkøbs-muligheder lige om hjørnet. Herudover er du tæt på både byen og uddannelsesinstitutioner.
Lejligheden er perfekt til dig der ønsker at bo alene eller som par.
Der kan lejes en p-plads ved ejendommen.
Lejeperioden er begrænset til 2 år el. 24 mdr.
Kontakt os for fremvisning af dette fine lejemål.
Vi udlejer ikke til personer i RKI.
Er du interesseret i lejemålet?

Risskov, Møllehatten 5, 3-4







Perfekt delejlighed med altan
Billig indflytningspris – populært område
Vil du bo tæt på byen, men med naturen som nabo? så er Brynet i Risskov et godt bud på den perfekte location.
? Beliggenhed: Møllehatten, Risskov – kun 4 km fra Aarhus C!
Her får du det bedste fra to verdener: kort afstand til studie, indkøb, transport og byliv – og samtidig tæt på skov, strand og smuk natur.
? Lejligheden byder på:
Lækkert, moderne køkken med Siemens-hvidevarer (ovn, induktion, opvasker, køl/frys)
To rummelige værelser – oplagt som stue og soveværelse eller to separate værelser
Direkte adgang til egen altan fra begge rum
Pænt badeværelse med kombi vaskemaskine/tørretumbler
Depotrum i kælderen
Mulighed for privat p-plads i aflåst parkeringskælder (mod betaling)
Husdyr – Mindre hunde/katte er tilladt efter aftale
- Fælles tagterrasse i ejendommen
- Mulighed for leje af p-plads i p-kælder.
? Norlys leverer internet og tv i ejendommen lejer laver selv aftale herom.
Ingen forudbetalt husleje – kun 3 måneders depositum!
OBS: Billederne er fra en tilsvarende bolig i samme bygning, skabsplacering kan være anderledes end på plantegning
Vi udlejer ikke til personer registreret i RKI.
Er du interesseret i lejemålet?

Trine
Email: tvb@taurus.dk
Rødovre, Aage Knudsens Strøg 3B,4.th.









Tagterrasse og altan
Kæmpe tagterrasse!
Denne 3 vær lejlighed ligger i Erantishaven, som består af 83 moderne kvalitetslejligheder midt i Rødovre centrum.
Ejendommen ligger meget tæt på rådhuset og kun 100 m. fra det store shoppingcenter Rødovre Centrum. Herfra er der også kun få minutters gang til Damhusengen og Damhussøens rekreative områder.
Byggeriet er opført som en trappeformet bygning i en L-form, der går fra kælder til femte etage. Ovenpå parkeringskælderen er etableret fællesarealer.
Alle lejlighederne har adgang til enten private tagterrasser, terrasser eller altaner.
Denne lejlighed indeholder:
- Et flot klassisk hvidt køkken med alle hårde hvidevarer.
- Stue og køkken/alrum i ét
- Kæmpe stor tagterrasse og en altan
- Soveværelse med skabe.
- Ekstra værelse med skab
- Lækkert badeværelse med vaskesøjle.
- Depotrum i lejligheden istedet for kælderrum
Lejlighederne har et super flot trægulv i eg og selvfølgelig gulvvarme overalt.
Ét husdyr kan tillades efter nærmere aftale med udlejer. Lejer må IKKE stå i RKI.
P-plads kan lejes i ejendommens p-kælder kr. 400,00 pr md.
OBS! Fotos er både fra lignende lejl. og fra en tidl. prøvebolig i ejendommen.
Kontakt for mere info og aftale om en fremvisning.
Er du interesseret i lejemålet?

Aarhus C, Augustenborggade 2K, kl. 4









Lys og rummelig lejlighed på Langenæs
Lys og rummelig 2’er med stor terrasse på Langenæs 🌿☀️
Drømmer du om en indbydende lejlighed med masser af lys og din egen skønne terrasse? Så er denne store 2-værelses lejlighed på Langenæs måske lige noget for dig!
Lejligheden byder på et åbent og indbydende køkken-alrum i forbindelse med stuen, hvorfra der er direkte udgang til en dejlig, stor terrasse – perfekt til både afslapning og hyggelige stunder.
Boligen indeholder:
• Stort og lyst køkken-alrum/stue med direkte adgang til egen terrasse
• Rummeligt soveværelse med god plads
• Pænt køkken med lyse elementer og opvaskemaskine
• Badeværelse samt separat toilet
• Entré i god størrelse med plads til overtøj
Derudover er der fri vask i ejendommen, hvilket gør hverdagen endnu nemmere.
Lejligheden udlejes tidsbegrænset i 2 år.
OBS: Lejligheden udlejes umøbleret.
Vi udlejer ikke til personer registreret i RKI.
Lyder det som noget for dig? Kontakt os allerede i dag for en fremvisning – vi glæder os til at vise dig dit måske nye hjem! ✨
Er du interesseret i lejemålet?

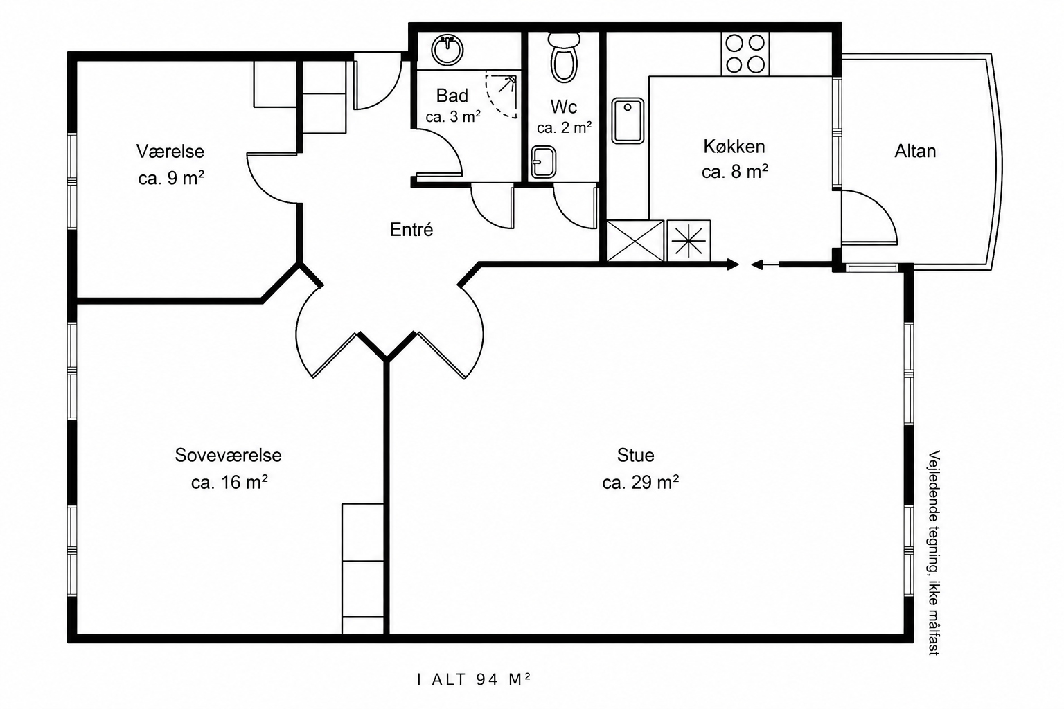
Højbjerg, Oddervej 74, 1.M









Rummelig lejlighed i Højbjerg
BO STORT OG LYST I HØJBJERG!
Nu har du chancen for at flytte ind i en rummelig og indbydende 3-værelses lejlighed med skøn beliggenhed i Højbjerg – tæt på Aarhus C og alt, du har brug for i hverdagen.
Lejligheden byder på:
✨ En lille entré med nem adgang til køkken og stue
✨ Pænt og funktionelt køkken i åben forbindelse med den lyse og rummelige stue
✨ To gode værelser – det ene med smart, integreret skabsløsning
✨ Nyere badeværelse med bruseniche
✨ Fri vask i kælderen – slip for møntvaskeri
✨ Gratis parkering lige ved bygningen
✨ Fantastiske transportmuligheder til Aarhus C – både bus og letbane i nærheden?
Bemærk: Udlejning sker ikke til personer registreret i RKI.
Tøv ikke – kontakt os i dag og book en fremvisning. Lejligheden skal opleves med egne øjne!
Er du interesseret i lejemålet?

Amperestien 12, st. tv.







Velindrettet og egen terrasse
Åbent hus i vores flotte prøvebolig
Onsdag kl. 16.30–17.00
Søndag kl. 11.00–12.00
2-værelses stuelejlighed
Denne 2-værelses stuelejlighed indeholder:
- Et godt værelse med indbyggede skabe
- Lejlighedens hjerte – det dejlige stue-/køkkenalrum
- Køkken med alle hårde hvidevarer
- Terrasse
- Lækkert badeværelse med vaskesøjle
- Depotrum i lejligheden, så du har det hele tæt på
Nærområdet
KobberEngens beliggenhed i Brøndbyvester, grænsende til Glostrup, er ideel i forhold til transport, daglige indkøb, institutioner, sportsaktiviteter, fitnesscenter samt natur- og kulturtilbud:
- Glostrup Storcenter – ca. 1,5 km
- Hovedvejen i Glostrup med mange butikker, spisesteder, Glostrup Biograf og gode indkøbsmuligheder – ca. 1,5 km
- Brøndby Strandpark – ca. 6 km fra Kirkebjerg. Et 7 km langt natur- og friluftsområde med sandstrand, rent badevand, varieret strandnatur samt mulighed for vinterbadning, SUP m.m.
- Svømmehal, fodbold og flere idrætsforeninger i nærområdet, fx håndbold, tennis, gymnastik, sejlads og skak. De mange tilbud skaber et stærkt fællesskab i lokalområdet.
- Kirkebjerg er omgivet af Brøndbyskoven, Bakkeskoven og Vestskoven med rig mulighed for friluftsliv og naturoplevelser.
- Gode muligheder for daginstitution og skole
Praktiske oplysninger
- 1 stk. mindre husdyr kan tillades efter aftale og godkendelse
- P-plads kan lejes i p-hus
- Lejer må ikke stå i RKI
- Fotos er fra lignende lejemål i ejendommen
Er du interesseret i lejemålet?

Cirkelhusene 10, 2.15







Flot bolig 2 skønne altaner
Er du interesseret i lejemålet?

Aarhus C, Østergade 31B, 2, lejl. 1






Lejlighed i hjertet af Århus
CENTRALT BELIGGENDE 3-VÆRELSES LEJLIGHED I HJERTET AF AARHUS
Drømmer du om at bo midt i byen med alt lige uden for døren? Så har du nu chancen for at sikre dig en moderne og indbydende 3-værelses lejlighed med en attraktiv beliggenhed i centrum af Aarhus.
Lejligheden er placeret på 2. sal og byder på en gennemtænkt planløsning med masser af lys og luft. Her får du et flot, moderne køkken med installeret opvaskemaskine, som ligger i åben forbindelse med en dejlig lys stue – perfekt til både hverdag og gæster.
Soveværelset har god skabsplads, så du nemt kan holde orden, og det store badeværelse er udstyret med vaskesøjle, hvilket gør hverdagen ekstra bekvem.
Som ekstra bonus har ejendommen en fælles tagterrasse, hvor du kan nyde solen og udsigten over byen.
Der er desuden mulighed for leje af p-plads i gården – en sjælden fordel i centrum.
Denne lejlighed er ideel til den enlige, der ønsker at bo centralt med stil, eller til parret, der vil have en skøn base midt i Aarhus.
Lyder det som noget for dig?
Så tøv ikke – kontakt os allerede i dag for en fremvisning af denne lækre lejlighed!
Er du interesseret i lejemålet?

RESERVERET Fredericia, Kongensstræde 26, 2. th.












Flot lejlighed med dejlig altan
Flot renoveret 3-værelses lejlighed med altan
Attraktiv beliggenhed i Prins Jørgens Gård – billig indflytning
Drømmer du om en moderne lejlighed i rolige omgivelser, men stadig centralt i Fredericia? Så er denne flotte renoverede 3-værelses lejlighed med altan i den populære ejendom Prins Jørgens Gård et oplagt valg.
Lejligheden fremstår lys og indbydende med lækkert køkken og badeværelse fra Invita samt kvalitets hårde hvidevarer fra Siemens. Her er der tænkt på både funktionalitet og æstetik.
Køkkenet er udstyret med:
Siemens indbygningsovn
Siemens induktionskogeplade
Siemens køle-/fryseskab
Siemens opvaskemaskine
Lejligheden indeholder:
Entré
Moderniseret badeværelse med nye Invita-elementer, armaturer samt kombineret vaskemaskine/tørretumbler
Soveværelse med god plads
Ekstra værelse – ideelt som kontor, børneværelse eller gæsteværelse
Lys stue med direkte udgang til en dejlig altan
Ejendommen byder på skønne fællesfaciliteter, som skaber rammerne for både ro og fællesskab:
Lukket og aflåst gårdmiljø kun for ejendommens beboere
Grønne fællesarealer og nyrenoveret legeplads med trampolin
Petanquebane til hyggelige stunder med naboer og venner
Fælleslokaler til arrangementer
Gratis fælles parkeringspladser
Der er desuden en aktiv beboerrepræsentation, som bidrager til et trygt naboskab.
Billig indflytning:
Kr. 0,- i forudbetalt leje og kun 2 måneders leje i depositum.
Bemærk: Billederne er fra en anden renoveret lejlighed i ejendommen.
Kontakt os allerede i dag for en fremvisning – måske er dette din næste drømmebolig i Fredericia.
Er du interesseret i lejemålet?

Fandt du ikke, hvad du søgte? Gå retur til toppen af listen over ledige lejemål her.