Køge, Cirkelhusene 13, 3.24


Billede til leje
Billede til leje
Billede til leje
Billede til leje

Til singlen der ønsker lækker lejlighed


Denne dejlige 1-værelses lejlighed med altan indeholder:
– Nyt køkken og bad fra Invita
– Alt i hårde hvidevarer inkl. kombi vaske- og tørremaskine
– Gulvvarme
– Stor, rummelig altan
– Depotrum i kælderen
– Masser af gratis parkering
Boligen er beliggende tæt på skov og strand, Køge centrum og Køge Nord Station og kun 20 minutters togtur til Københavns Hovedbanegård.
Der kan gives tilladelse til husdyr, som skal godkendes af udlejer.
Cirkelhuset er et anderledes og spændende byggeri med sin markante cirkulære form, og består af 100 lejligheder fordelt på 1-3 værelseslejligheder.
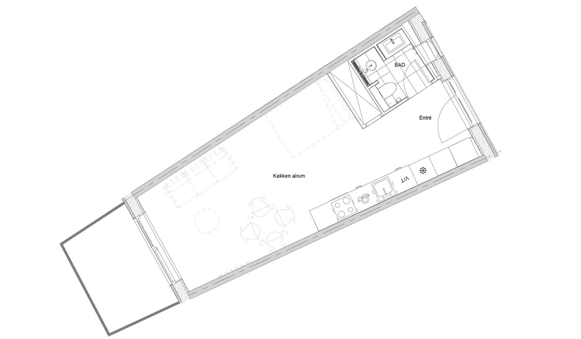
Fotos og plantegning er fra lignende lejemål.
Lejer må ikke figurere i RKI.

Er du interesseret i lejemålet?

Pia Riedel

Email: pri@taurus.dk

  • Overtagelsesdato: 01-01-2026
  • Vejnavn: Cirkelhusene
  • Husnummer: 13
  • Etage: 3
  • Dør: 24
  • Postnummer: 4600
  • Boligtype: lejlighed
  • Antalværelser: 1 vær.
  • Boligareal (m2) : 48
  • Husleje (Mdl.) : 8.100,-
  • A/C forbrug : 550,-
  • Depositum: 24.300,-
  • Forudbetalt leje: 8.005,-
  • Lejeperiode: ubegrænset
  • Møbleret: Nej
  • Delevenlig: Nej
  • Husdyr tilladt: Ja
  • Elevator: Ja
  • Ældrevenlig: Nej
  • Studiebolig: Nej
  • Altan/terrasse : Ja
  • Opvaskemaskine: Ja
  • Vaskemaskine: Ja
  • Tørretumbler: Ja
  • Ladestander: Ja
  • Parkering: Ja

Fandt du ikke, hvad du søgte? Gå retur til toppen af listen over ledige lejemål her.