Kbh. SV, Andrea Brochmanns Gade 18, 3. tv.












Dejlig lys og med altan
Denne skønne 3 vær lejlighed ligger i dette flotte, nye og markante byggeri med en god placering i Københavns Sydhavn – et område i rivende udvikling.
Ejendommen består af 3 karréer med lejligheder i alle størrelser fra 1-5 vær – så her er en bolig for alle, uanset hvor i livet man måtte befinde sig. Ejendommens facade har masser af spil i de smukke lyse sten med flotte detaljer overalt og hyggelige grønne gårdrum.
Desuden findes p-kælder, cykelparkering, depotrum, store fælles tagterrasser, orangeri på taget, fællesrum med køkken og meget mere.
Boligerne er lyse med en god planløsning og indrettet med skønt parketgulv i egetræ og gulvvarme. Køkkenet er flot og klassisk hvidt fra Invita og med alt i hårde hvidevarer.
Badeværelset er beklædt med store fliser på både gulv og i bruseniche. Her er dejlig gulvvarme, vaskesølje og opbevaring under vasken.
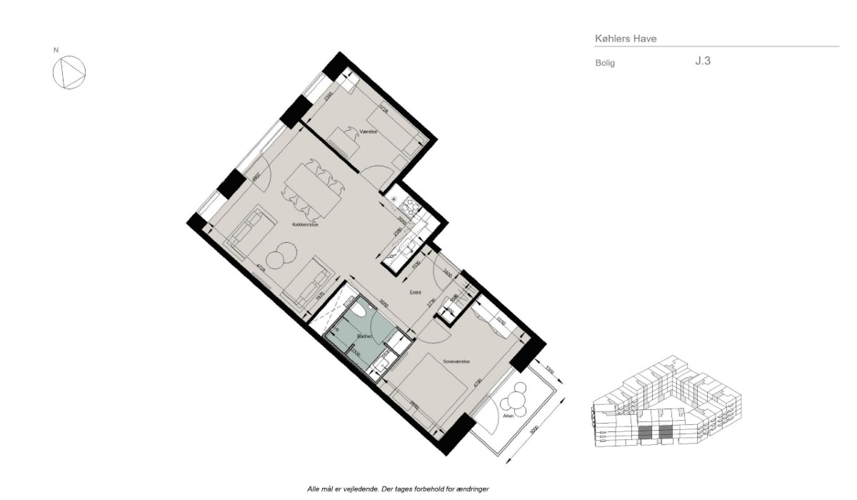
Denne lejlighed indeholder:
- God entré med et skab til overtøjet
- Flot lyst badevær. med vaskesøjle
- Flot køkken med alle hårde hvidevarer i åben forbindelse med stuen
- Skøn stue/køkkenalrum
- To gode værelser – begge med lidt skabe
- Dejlig altan
Depotrum i kælderen medfølger gratis og p-plads kan lejes i p-kælder under ejendommen for 800 kr/md.
Ét husdyr kan tillades efter nærmere aftale med udlejer.
Den nye metrostrækningen i Sydhavnen har stop ved Mozarts Plads, som ligger kun 5 min fra Køhlers Have. Hvis du har bil, er det desuden super nemt at komme ud af Kbh. og på motorvejen.
Lejer må ikke stå i RKI.
*Alle fotos er fra tidligere prøveboliger i ejendommen.
OBS! Lejemålet er uopsigeligt i 9 mdr.
Kontakt for mere info og aftale om fremvisning.
Er du interesseret i lejemålet?

Mette Thorndal
Email: mth@taurus.dk
Fandt du ikke, hvad du søgte? Gå retur til toppen af listen over ledige lejemål her.